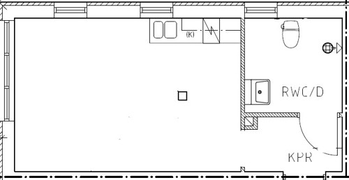
Nu finns möjlighet att hyra en lokal på 29 kvm med öppen planlösning på bottenplan i ett flerfamiljshus på Koön. Lokalen innehåller ett rum med köksdel där det finns spis, diskmaskin och kyl/frys. Väggar och skåpsluckor är vita och på golvet ligger eklaminat. Badrummet är handikappanpassat och har grått klinkergolv, vita helkaklade väggar och duschplats.
Besöksparkering finns på promenadavstånd ca 300 meter bort och närmaste busshållplats är vid färjeläget.
Tillträde enligt överenskommelse.
Om du är intresserad av lokalen eller har frågor kontakta Alexia, uthyrare och lokalsamordnare på mejl alexia.pech@foerbo.se eller telefon 031-746 50 26.




